販売住戸の一覧

先着順にて販売の際、万一売却済の節はご容赦ください。

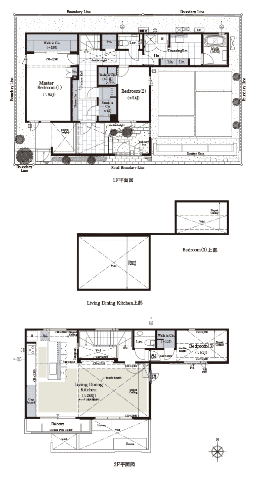
区画番号 価格 土地面積 建物面積 構造・階数 工法 間取り 道路 間取り図 販売期
3 3億3000万円 165.31㎡ 128.55㎡ 木造・2階建て 木造2×4 3LDK 詳細 先着順

※「交通」に表示する最寄駅など所要時間は本物件販売総戸数に対応した内容です。

情報更新日:2025年10月14日(火)