-
JR中央線・総武線/東京メトロ東西線/京王井の頭線 2駅4路線利用可能!
井の頭恩賜公園徒歩最短14分 吉祥寺も身近な生活圏
「立教女学院」「都立西高校」等由緒正しい教育施設が充実
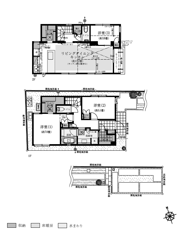
ウォークインクローゼット・パントリー等動線の魅力も兼ね備えた大型収納- 所在地
-
東京都杉並区松庵1丁目67番6他(地番)
物件所在地をGoogle Mapで見る - 交通
- JR中央線・JR総武線・東京メトロ東西線「西荻窪」駅 徒歩15分
京王電鉄井の頭線「三鷹台」駅 徒歩11分~12分
JR中央線・JR総武線・東京メトロ東西線「吉祥寺」駅 徒歩21分 - 総戸数
- 6戸
- 入居時期
- 2026年4月中旬予定
- 構造・階数
- 木造・2階建

