-
湘南茅ヶ崎の地に全11邸のファインコート誕生
JR茅ヶ崎駅までフラットアプローチ徒歩14分
豊かな収納空間と快適な生活導線- 所在地
-
神奈川県茅ヶ崎市茅ヶ崎字居村1139番3他(地番)
物件所在地をGoogle Mapで見る - 交通
- 東海道本線「茅ケ崎」駅 徒歩14分
相模線「北茅ケ崎」駅 徒歩3分 - 総戸数
- 11戸
- 入居時期
- 2026年6月下旬入居予定
- 構造・階数
- 木造・2階建
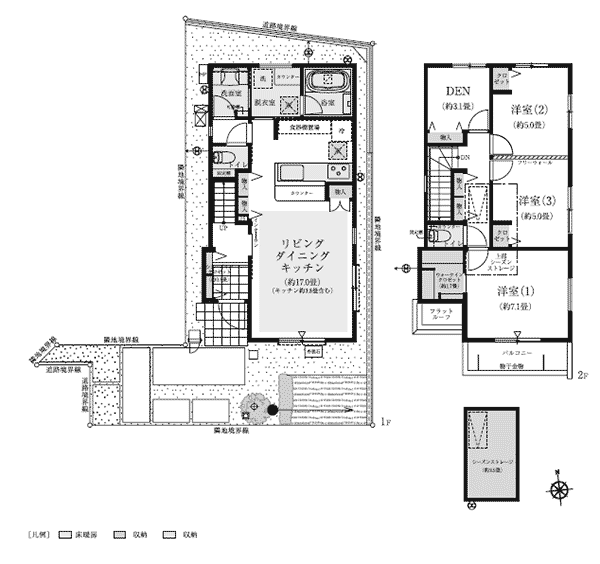
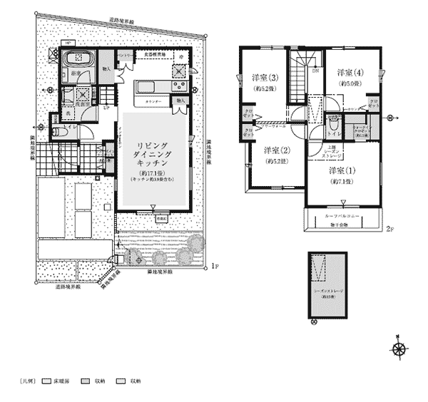
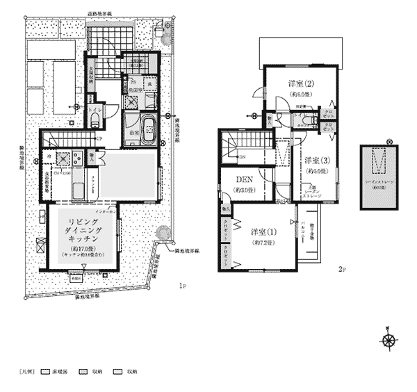
| 区画番号 | 価格 | 土地面積 | 建物面積 | 構造・階数 | 工法 | 間取り | 道路 | 間取り図 | 販売期 |
|---|---|---|---|---|---|---|---|---|---|
| 10 | 6620万円 | 100.02㎡ | 93.51㎡ | 木造・2 | 木造2×4 | 4LDK | 詳細 | 第1期 | |
| 6 | 6380万円 | 100.03㎡ | 94.58㎡ | 木造・2 | 木造2×4 | 4LDK | 詳細 | 第1期 | |
| 9 | 6630万円 | 100.02㎡ | 94.71㎡ | 木造・2 | 木造2×4 | 4LDK | 詳細 | 第1期 | |
| 8 | 6730万円 | 100.98㎡ | 95.63㎡ | 木造・2 | 木造2×4 | 4LDK | 詳細 | 第1期 | |
| 5 | 6880万円 | 101.08㎡ | 95.65㎡ | 木造・2 | 木造2×4 | 4LDK | 詳細 | 第1期 | |
| 4 | 7180万円 | 103.54㎡ | 95.97㎡ | 木造・2 | 木造2×4 | 4LDK | 詳細 | 第1期 | |
| 2 | 7380万円 | 111.03㎡ | 97.08㎡ | 木造・2 | 木造2×4 | 4LDK | 詳細 | 第1期 |
--
情報更新日:2026年4月17日(金)

