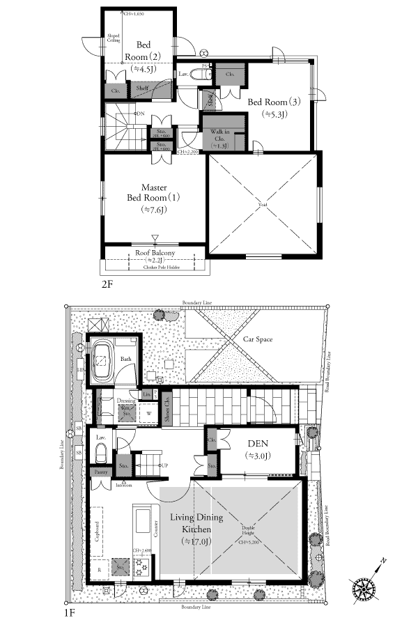
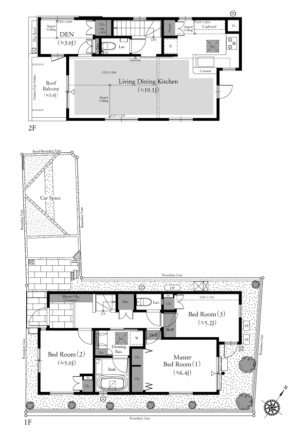
販売住戸の一覧

区画番号 価格 土地面積 建物面積 構造・階数 工法 間取り 道路 間取り図 販売期
7 1億890万円 96.61㎡ 89.26㎡ 木造・2 木造2×4 4LDK 詳細 第二期
4 1億1690万円 92.43㎡ 92.42㎡ 木造・2 木造2×4 4LDK 詳細 第二期

--

情報更新日:2026年4月14日(火)