-
三鷹市まちづくりの中心拠点に全24区画の街並み創造プロジェクト
JR中央線・中央総武線・東京メトロ東西線乗入れ「三鷹」駅・「吉祥寺」駅利用可能
徒歩10分圏内に生活利便施設が集積
全邸敷地面積110㎡超 ゆとりある街並みを創造- 所在地
-
東京都三鷹市野崎1丁目25番173(地番)
物件所在地をGoogle Mapで見る - 交通
- 中央本線「三鷹」駅 バス19分 バス停から徒歩2分~3分
中央本線「三鷹」駅 バス14分 バス停から徒歩7分~8分 - 総戸数
- 24戸
- 入居時期
- 2026年7月上旬(第一工区、第二工区)
- 構造・階数
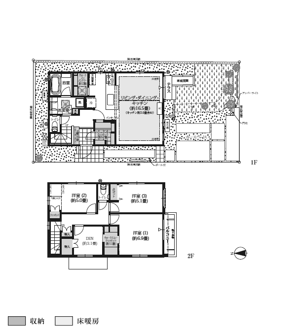
- 木造・2階建

