-
東京メトロ丸の内線「南阿佐ヶ谷駅」徒歩最短8分。新宿まで12分、大手町まで35分の好アクセス。
JR中央線「阿佐ヶ谷」駅導線に「パールセンター商店街」「すずらん通り」と、高い生活利便性。
桜の名所としても知られる「善福寺川緑地」へ徒歩最短6分- 所在地
-
東京都杉並区成田東3丁目156番20の一部(地番)
東京都杉並区成田東3丁目34番 以下未定(住居表示)
物件所在地をGoogle Mapで見る - 交通
- 東京メトロ丸ノ内線「南阿佐ケ谷」駅 徒歩8分~9分 ※徒歩8分(No.1)、徒歩9分(No.2・3・4・5)
中央本線「阿佐ケ谷」駅 徒歩16分 ※徒歩16分(No.1・2・3・4・5) - 総戸数
- 5戸
- 入居時期
- 2026年5月下旬入居予定
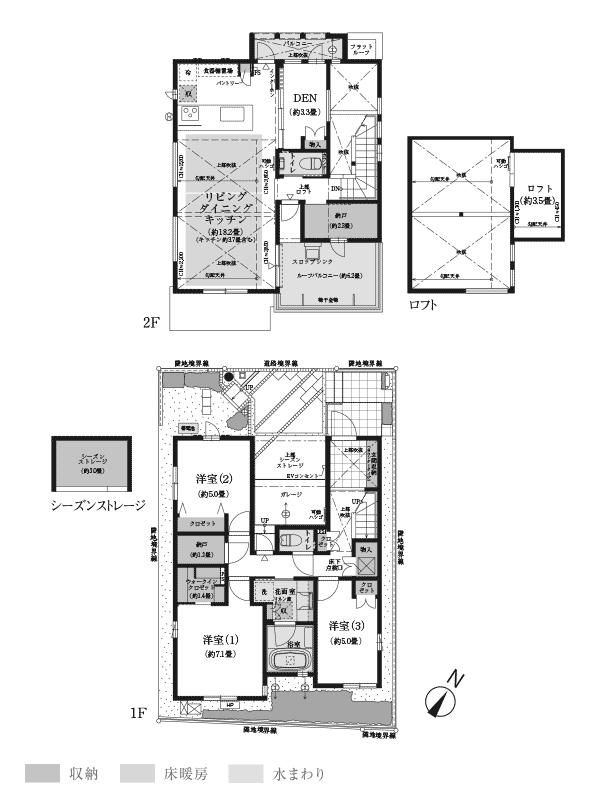
- 構造・階数
- 木造・2階建

