-
「西荻窪」駅徒歩9分、静謐な第一種低層住居専用地域
駅前商店街や高架下再開発を利用可能な商業利便に優れた立地
LD吹抜・勾配高天井、全邸ルーフバルコニー設置
ガス衣類乾燥機、宅配ボックス標準装備など機能的な設備・仕様- 所在地
-
東京都杉並区松庵3丁目101番8他(地番)
東京都杉並区松庵3丁目15-19、20(住居表示)
物件所在地をGoogle Mapで見る - 交通
- 中央本線「西荻窪」駅 徒歩9分
JR総武線「西荻窪」駅 徒歩9分
東京メトロ東西線「西荻窪」駅 徒歩9分 - 総戸数
- 5戸
- 入居時期
- 2025年12月上旬以降
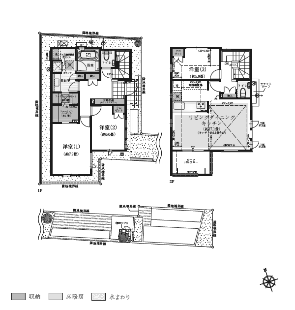
- 構造・階数
- 木造2階建