販売住戸の一覧

先着順にて販売の際、万一売却済の節はご容赦ください。

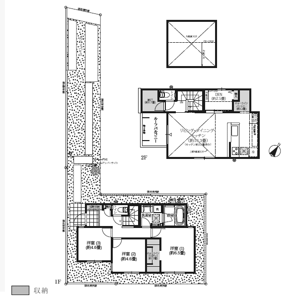
区画番号 価格 土地面積 建物面積 構造・階数 工法 間取り 道路 間取り図 販売期
16 6490万円 119.69㎡ 88.18㎡ 木造・2階建 木造2×4 4LDK 詳細 先着順

--

情報更新日:2026年4月24日(金)