-
福岡市営地下鉄七隈線「薬院大通」駅徒歩7分
浄水通りの美しい風景となるデザイン設計- 所在地
-
福岡県福岡市 中央区浄水通48-2(地番)
物件所在地をGoogle Mapで見る - 交通
- 福岡市七隈線「薬院大通」駅 徒歩7分 サブエントランスより約530m
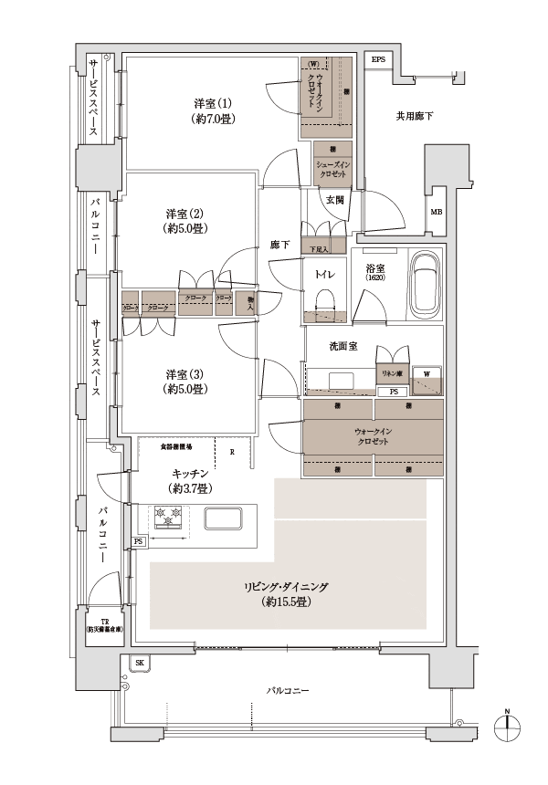
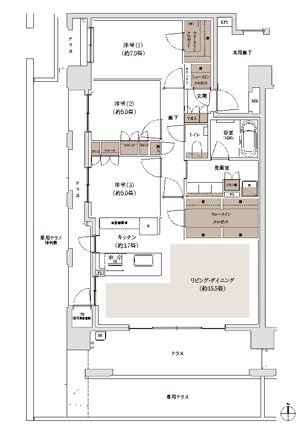
- 総戸数
- 総戸数55戸(一般販売対象住戸47戸)
- 入居時期
- 2026年9月下旬予定
- 構造・階数
- 鉄筋コンクリート造地上8階建
先着順にて販売の際、万一売却済の節はご容赦ください。

