北欧の住思想に学んだ、
心地よさに満ちた空間を。
北欧では、住まいで過ごす家族の時間を大切にし、自然を享受しながら、
誰もが自然体で楽しめる心地よい空間づくりが基本。私たちは、現代の都市邸宅にこそ、そうした空間が必要と考え、
北欧の住思想に学んだ、心地よさに満ちた空間づくりを目指しました。
LD吹抜
家族が集うリビング・ダイニングに吹抜を設置。視界が縦に広がり、明るく伸びやかな開放感を享受できます。
※No.2・4に採用。
2階LD 勾配高天井
勾配高天井を設えた開放的なリビング・ダイニング。変化のある天井意匠がスタイリッシュな空間を演出します。
※No.2・4に採用。
ルーフバルコニー
アウトドアの開放感を享受するルーフバルコニー。ガーデニングやティータイムなど、楽しみ方は自在に。
※No.1・3・4・5・6・7・9に採用。
コーナーサッシからのファインコートビュー
No.9はLDと2階の洋室(2)にコーナーサッシを採用。四季折々の美しいファインコートの街並みが楽しめます。
※ファインコートビューのコーナーサッシ:No.4・5・8・9に採用。
玄関吹抜
訪れる方を上質な開放感で迎える玄関吹抜。アイアン調化粧手摺りと一体となり、優美な迎賓空間を演出。
※No.1・3・5・9・10に採用。
玄関土間スペース + ホール
広々とした土間スペースは、ベビーカーを置いても余裕の広さ。ホールから化粧手摺りへと続く意匠性の高い空間を創出。
※No.4に採用。
アイランドキッチン
開放感と回遊性を備え、お洒落な空間を演出するアイランドキッチン。ライフスタイルに合わせた食卓スタイルが楽しめます。
※No.1に採用。
L型キッチン
作業スペースが広くとれるL型キッチン。動線もスムーズになり家事効率もアップします。
※No.6・7・8に採用。
快適な家事動線
2Wayキッチンを中心に、洗面室、LDをつなぐ家事動線を実現。使いやすい水回りのレイアウトで、家事効率がアップします。
※No.3・10に採用。
ランドリールーム
扉で仕切られ、プライバシーが保たれるランドリールーム。カウンターやハンガーパイプ付で、洗濯物の片付けもスムーズです。
※No.3に採用。
ウォークインクロゼット
大型のウォークインクロゼットは、スーツやコートなどをハンガーにかけてそのまま収納。
小物類の整理に便利な棚も付いています。
※No.3・4・9・10に採用。
納戸
段差がないので荷物の出し入れがスムーズな納戸。
季節家電やスーツケースなど大きなものの収納に最適です。
※No.1・5・9・10に採用。
カウンター下部収納
キッチンの並びにカウンター下部収納を設置。キッチン廻りの小物が片付いて、快適なキッチン空間を実現します。
※No.1・2に採用。
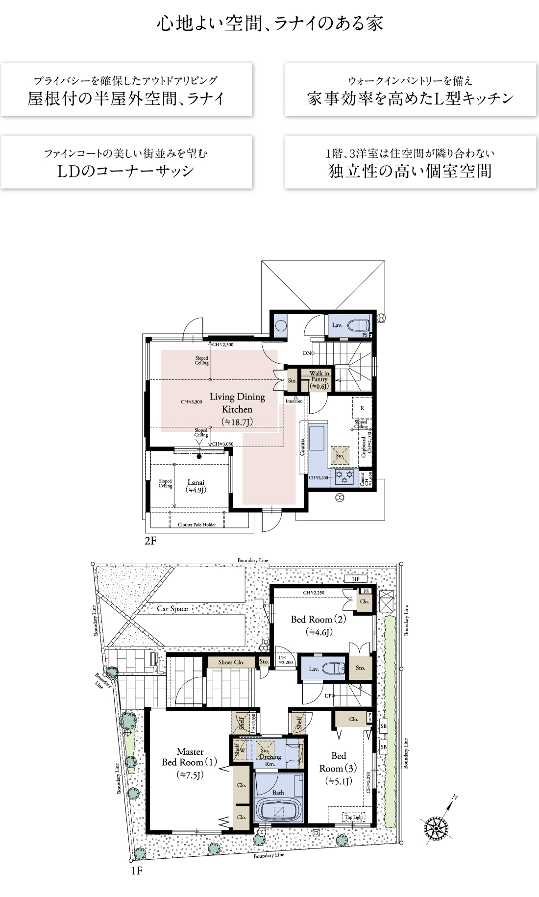
ウォークインパントリー
調味料をはじめ、食品やワインなどのストックに便利。週末のまとめ買いした物がスッキリ片付きます。
※No.8に採用。
No. 1
1 街区
3 LDK
+ラナイ+納戸
敷地面積 94 . 01 ㎡
(約 28 . 43 坪)
延床面積 93 . 90 ㎡
(約 28 . 40 坪)
ファインコート経堂カームテラス インフォメーションデスク
- 営業時間
- 10:00~17:00(土・日・祝日)
- 11:00~17:00(月・金)
- 定休日
- 火・水・木曜日
Copyright © Mitsui Fudosan Residential Co.,Ltd. All Rights Reserved.
No. 4
4 街区
4 LDK
(DENを含む) +ウォークインクロゼット
敷地面積 92 . 43 ㎡
(約 27 . 96 坪)
延床面積 92 . 42 ㎡
(約 27 . 95 坪)
ファインコート経堂カームテラス インフォメーションデスク
- 営業時間
- 10:00~17:00(土・日・祝日)
- 11:00~17:00(月・金)
- 定休日
- 火・水・木曜日
Copyright © Mitsui Fudosan Residential Co.,Ltd. All Rights Reserved.
No. 8
8 街区
3 LDK
+ラナイ +ウォークインパントリー
敷地面積 92 . 50 ㎡
(約 27 . 98 坪)
延床面積 92 . 48 ㎡
(約 27 . 97 坪)
ファインコート経堂カームテラス インフォメーションデスク
- 営業時間
- 10:00~17:00(土・日・祝日)
- 11:00~17:00(月・金)
- 定休日
- 火・水・木曜日
Copyright © Mitsui Fudosan Residential Co.,Ltd. All Rights Reserved.
No. 10
10 街区
3 LDK
+ラナイ+納戸 +ウォークインクロゼット
敷地面積 95 . 06 ㎡
(約 28 . 75 坪)
延床面積 94 . 17 ㎡
(約 28 . 48 坪)
ファインコート経堂カームテラス インフォメーションデスク
- 営業時間
- 10:00~17:00(土・日・祝日)
- 11:00~17:00(月・金)
- 定休日
- 火・水・木曜日
Copyright © Mitsui Fudosan Residential Co.,Ltd. All Rights Reserved.
※本物件の代表タイプの間取りを表示しています。販売住戸の間取りにつきましては、本広告時の物件概要内「販売住戸の一覧」をご覧ください。※掲載の間取りは計画段階の図面を基に描き起こしたもので実際とは多少異なります。※施工等の関係で変更になる場合がございます。詳しくは施工図等でご確認ください。※外構の石、タイル等はおおよその施工範囲を示したものです。※坪数と畳数は約表記です。※DEN=書斎。※ラナイ=屋根付大型バルコニー・テラス。※WIC=ウォークインクロゼット。※WIP=ウォークインパントリー。

