機能美と空間美を満たす、
邸宅の新しき洗練を。
ビルトインカースペース
大切な愛車を雨や風から守る、ビルトインカースペース。
天候を気にせず乗り降りでき、日々の使い勝手と安心感を高めます。※No.1・2に採用。
◉雨に濡れずに出入り可能。
◉天井部分は木調仕上げで上質な空間を創出。
2階リビング
◉プライバシーと開放感を兼ね備えた2階リビング。
※No.1・2・3に採用。
2階リビング概念図(No.2)
玄関吹抜
◉訪れる方を上質な開放感で迎える玄関吹抜。
※No.4に採用。
ルーフバルコニー
◉スロップシンク付の広々ルーフバルコニー。
※No.4に採用。
多彩な収納計画
◉No.1:
2階共用収納スペース「納戸」。
◉No.2:ビルトインカースペースから出入り可能なシューズインクロゼット。
◉No.3:食品ストックなどをたっぷり収納できるウォークインパントリー。
◉No.4:
全洋室にウォークインクロゼットを設置。
機能的な生活動線
◉ビルトインカースペースからシューズインクロゼットへ直接出入りでき、雨の日も安心です。※No.2に採用。
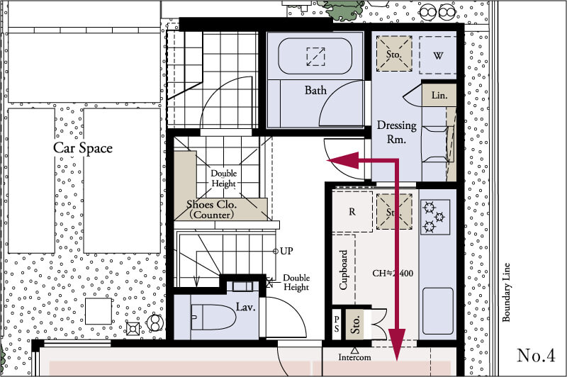
◉洗面室とLDを繋ぐ2Wayキッチン。料理と洗濯を同時にこなせる、無駄のない家事動線を実現。※No.4に採用。
全体区画図
敷地配置イラスト ◯電柱
※掲載のイラストは計画段階の図面を基に描き起こしたもので実際とは多少異なります。※本敷地配置イラストは契約状況を表示したものではありません。
No. 2
2 街区
3 LDK
+ウォークインクロゼット +シューズインクロゼット
敷地面積 102 . 74 ㎡
(約 31 . 07 坪)
延床面積 113 . 81 ㎡
(約 34 . 42 坪)
ファインコート石神井公園マスターグレイス インフォメーションデスク
- 営業時間
- 10:00~17:00(土日)
- 11:00~17:00(平日※月・金)
- 定休日
- 火・水・木
Copyright © Mitsui Fudosan Residential Co.,Ltd. All Rights Reserved.
※延床面積は、ビルトインカースペース面積13.04㎡を含みます。
No. 4
4 街区
3 LDK
+ウォークインクロゼット×3
敷地面積 96 . 01 ㎡
(約 29 . 04 坪)
延床面積 95 . 95 ㎡
(約 29 . 02 坪)
ファインコート石神井公園マスターグレイス インフォメーションデスク
- 営業時間
- 10:00~17:00(土日)
- 11:00~17:00(平日※月・金)
- 定休日
- 火・水・木
Copyright © Mitsui Fudosan Residential Co.,Ltd. All Rights Reserved.
※本物件の代表タイプの間取りを表示しています。販売住戸の間取りにつきましては、本広告時の物件概要内「販売住戸の一覧」をご覧ください。※掲載の間取りは計画段階の図面を基に描き起こしたもので実際とは多少異なります。※施工等の関係で変更になる場合がございます。詳しくは施工図等でご確認ください。※外構の石、タイル等はおおよその施工範囲を示したものです。※フリーウォールの撤去には別途設計費・工事費が必要となります。※DEN=書斎。※J=約畳数。
愛されるために佇む、
スタイリッシュモダンな外観。
邸宅の洗練と存在感を印象づける
斜め壁デザイン。
スタイリッシュな存在感を演出する斜め壁デザインを採用。大きな壁面にサイズの異なるタイルを張り合わせ、さらなる上質感を創出します。
※No.1・4に採用。
浮遊感のあるバルコニーにより、
外観フォルムの立体感を強調。
バルコニー部分を前面にせり出し、大胆に浮遊感を持たせた意匠に。外観フォルムをより立体的に見せ、街並み全体にもリズム感を与えます。
※No.2に採用。
住まいとしての温もりを演出。
自然の風合いを加える木調パネル。
玄関ポーチ天井やビルトインカースペースの天井に木調パネルを採用。自然の風合いを感じる素材をアクセントに加え、温もりを演出します。
※玄関ポーチ天井:全邸に採用。ビルトインカースペース天井:No.1・2に採用。
玄関ポーチ・ビルトインカースペース天井
モダンとナチュラルの調和を求めた、多様な外観素材の採用。
見せ場に用いた上質なタイル、主要な壁面を構成する意匠性の高い塗り壁材、さらにアクセントとして魅せる木調パネルなど、
様々な異素材を外観に採用することで洗練と温かみの調和する外観を求めました。
帰りたくなる邸宅の景を描いた
外構デザイン。
外構に風情や品格を演出する、
自然石「景石」を全邸に採用。
景石とは庭の重要なポイントに配置される観賞用の天然石。外構を彩る植栽帯の足元に、三濃石による景石を採用し、外構に風情や品格を演出します。
急なお出かけや不在の際に便利な
宅配ボックスを実装。
留守でも在宅でも荷物を受け取ることができる便利な宅配ボックスを全邸に実装。ウイルス対策として非接触での荷物の受け取りも可能です。
心地よい景観を演出する、柔らかな照明計画。
温もりのある景観をスタイリッシュに
演出する照明付ローフェンス。
カースペースまわりのローフェンスは、洗練された黒いアルミラインが特長的なデザイン。さらにライン照明も備え夜間の街並みを美しく演出します。
※各住戸の間のフェンスの一部に設置。
帰宅時にさらなる安心を灯す、
照明付L字門柱。
スタイリッシュな意匠のL字門柱を全邸に配置。その門柱にダウンライトを備え、温かみのある景観を演出。帰宅時にさらなる安心を灯します。
石神井公園の景観を受け継ぐ植栽計画。
※掲載の完成予想CGは、設計図を基に作成したもので、形状・色等は実際とは異なります。なお、外観形状の細部、設備機器等は表現しておりません。このCGで表現されている植栽は竣工から初期の育成期間を経た状態のものを想定して描いており、竣工時は植物の生育を見込んで必要な間隔をとって植えております。※家具・調度品等は販売価格に含まれません。

