この邸宅は、
華やかに景観を創る。
外観完成予想CG(1)

外観完成予想CG(2)
DESIGN
彫刻的な美しさを魅せながら、
着物が織りなす美意識を
内包することにこだわった邸宅。
国際色豊かなメンバーが活動する
「Hoshino Architects」が
設計デザインを監修した
栄の新たなシンボルタワーです。
-
FORM
空へ伸びゆく立ち姿に、
凛とした美しさを。出典:『青樓藝者撰・いつとみ』鳥文斎栄之

-
MOTIF
気品ある面差しに、
この地の時の厚みと奥行きを。出典:折おりの記(ブログ)より

Dressed Up Sculpture
ガラスが際立つスタリッシュなフォルムと、
やさしく描くグラデーション。
“Dressed Up Sculpture”を
デザインコンセプトに、この街にふさわしい清雅な佇まいを表現しました。
建物頂部を縁取るアイコニックなライティングが夜の遠景にも美しく存在感を放ちます。

Architect
デザイン監修ホシノアーキテクツ 代表取締役/
ホプキンスアーキテクツ 日本代表星野裕明

1973年生まれ。2000年にロンドンを拠点に世界で活躍するホプキンスアーキテクツに入社。ロンドン、ドバイ事務所と経験を積み プロジェクトディレクターとして、ヨーロッパ、中東、日本のプロジェクトデザインを担当する。2012年、ホシノアーキテクツ設立。 現在、ホプキンスアーキテクツ日本代表、ホシノアークテクツ代表取締役を務める。世界を知る建築家・デザイナーとして活躍中。
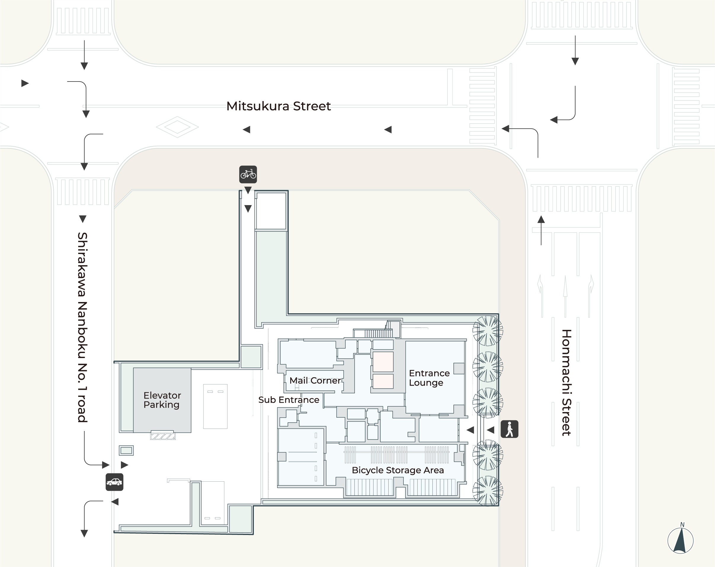
LANDSCAPE
快適な動線を描くランドプラン。
三蔵通と本町通に面した交通至便な立地を生かし、
人と車、自転車それぞれにスムーズで安全な
動線を叶えた敷地デザインです。
動線概念図※掲載の外観完成予想CG(2)は計画段階の図面を基に描き起こしたもので、形状・色等は実際とは異なります。施工上の都合、行政官庁の指導などにより変更が生じる場合があります。なお、形状の細部、設備機器等は表現しておりません。また敷地内のみ表現しております。敷地内の植栽は竣工から初期の育成期間を経た状態のものを想定して描いており、竣工時は植物の生育を見込んで必要な間隔をとって植えております。
※掲載の外観完成予想CG(3)は、現地周辺(現地より約50m、高さ約58m)から北東方面を撮影した眺望写真(2025年11月)を合成したものです。計画段階の図面を基に描き起こしたもので形状・色等は実際とは異なります。なお、外観形状の細部、設備機器等は表現しておりません。眺望・景観は各階・各住戸により異なり、今後の周辺環境の変化に伴い将来にわたって保証されるものではありません。また、家具・調度品は販売価格に含まれません。
※掲載のエントランス完成予想CGは、計画段階の図面を基に描き起こしたもので、形状・色等は実際とは異なります。施工上の都合、行政官庁の指導などにより変更が生じる場合があります。なお、形状の細部、設備機器等は表現しておりません。また敷地内のみ表現しております。敷地内の植栽は竣工から初期の育成期間を経た状態のものを想定して描いており、竣工時は植物の生育を見込んで必要な間隔をとって植えております。
※掲載の動線概念図は周辺建物のや道路等の一部を省略・簡略化の上表現しており、実際とは多少異なります。
※掲載の情報は、2025年12月現在の情報をもとに作成しておりますので、今後変更となる場合がございます。予めご了承ください。
