白川公園を眼下に、
空に親しみ、静寂に浸る。
L-155Mタイプ(リビング・ダイニング)室内完成予想CG
視界が豊かにひろがるコーナーサッシ。都心であることを忘れさせる、圧倒的開放感。
立地の魅力を存分に享受するのびやかな空間設計に加え、
ホテルライクな内廊下でプライバシーにも配慮しました。
VIEW
緑が映える爽快なスカイビュー。
イルミネーションの海を見下ろすナイトビュー。
心に満ちてくる、ゆとりと潤いを愉しむ。
PLAN
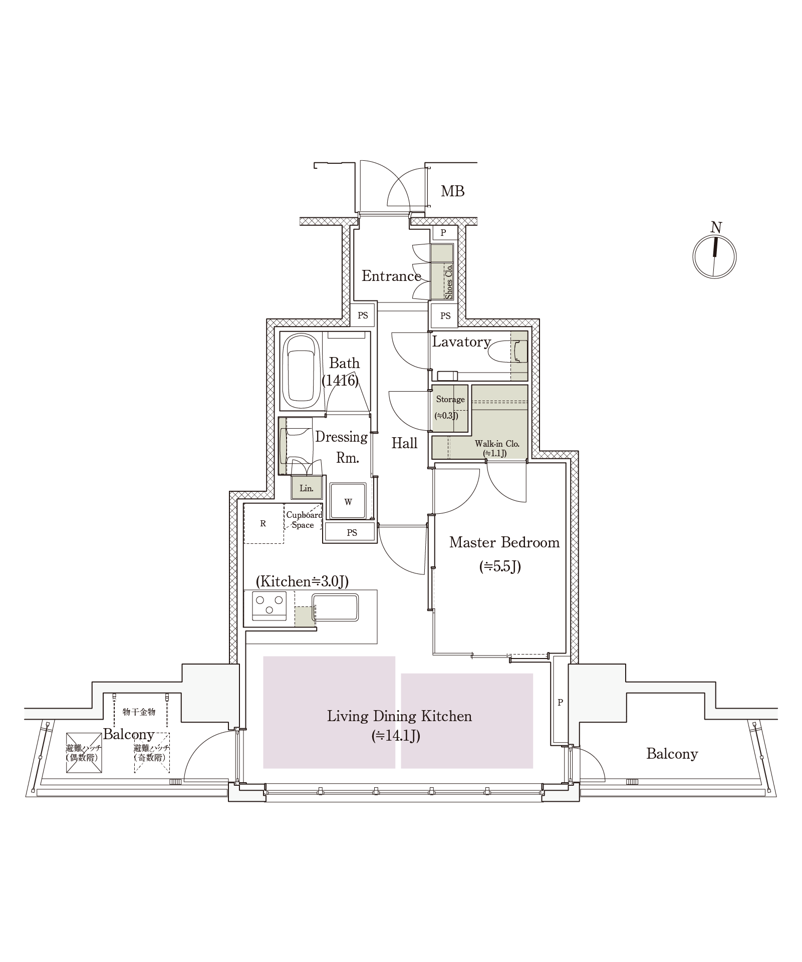
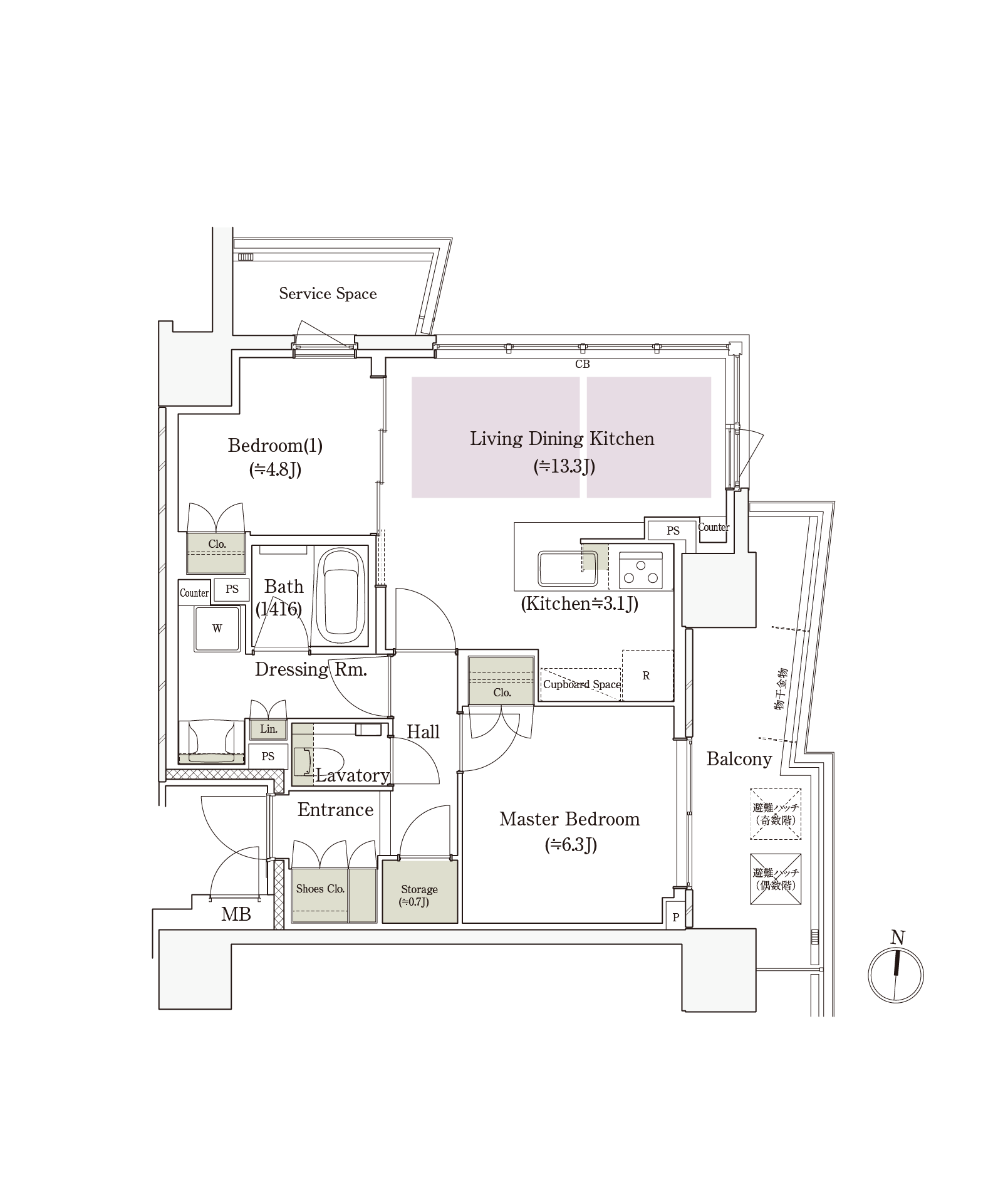
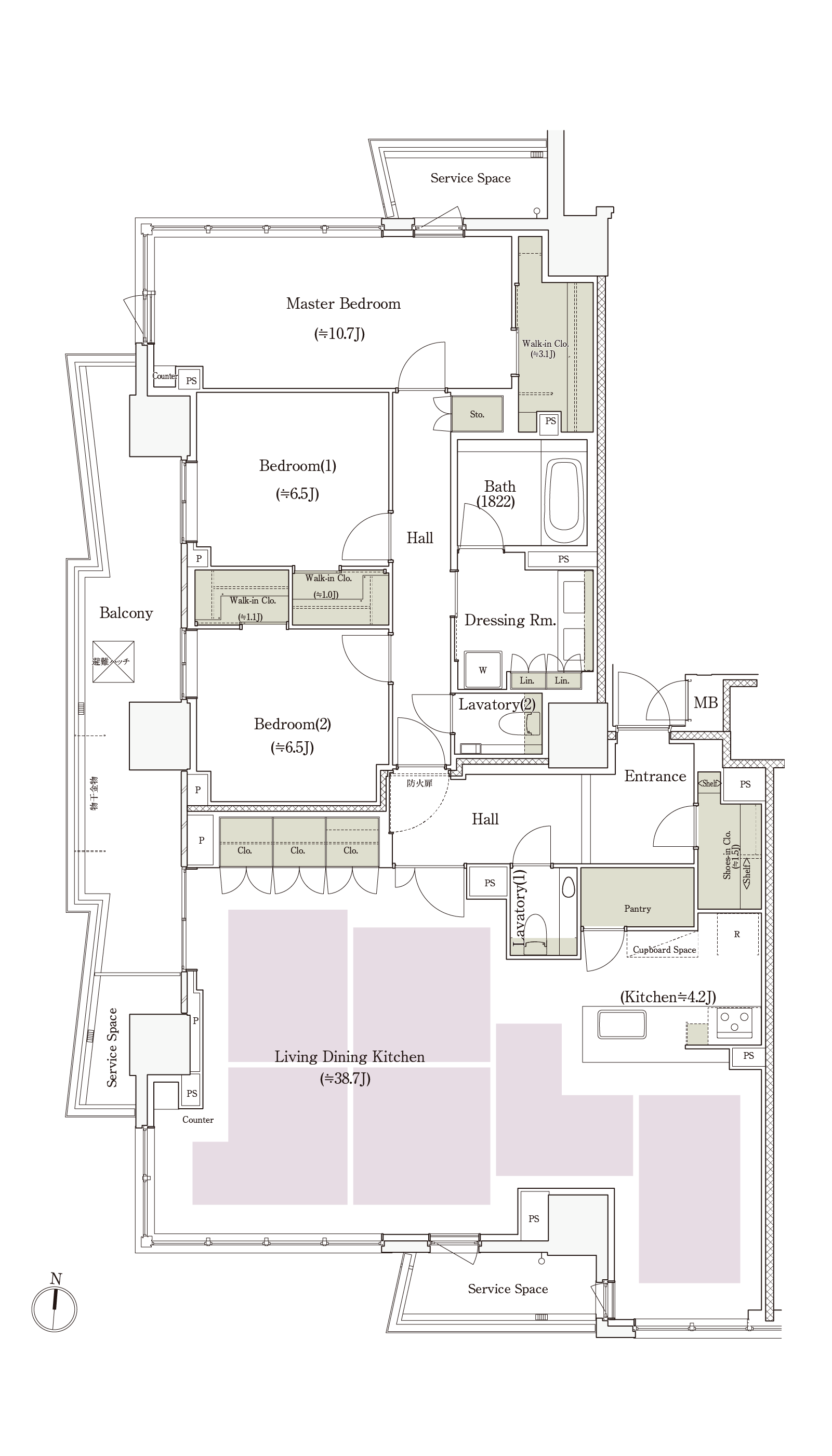
1LDK~3LDK、専有面積約50m²~161m²、
全居室に窓を設け開放的でゆとりある
多彩なプランバリエーション。
Common space
■14~19階平面概念図
各階ゴミ置場
2階から24階まで各フロアにゴミ置場を設置し、日々のゴミ捨てをスムーズに。
共用廊下とは管理用扉で仕切られた配置とし、快適性に配慮しています。
※粗大ゴミ除く
ホテルライクな内廊下
外部からの視線を遮りプライバシー性を高める内廊下設計。
天候の影響を受けないいつも快適な空調、踏み心地のいいカーペットが落ち着きの空間を演出。
各階防災倉庫
1階の防災倉庫のほか、各階にも災害時に必要な品を収めています。
※13階を除く
Private space
空間スッキリ、アウトポール工法
※バルコニー面のみ
SIC、WICなど収納豊富
※SICはA・B・C・D・E・F・I タイプ、
WICはA・B・D・Eタイプを除く。
角住戸率88%(95戸中84戸)
コーナーサッシ採用
LD天井高
2,400㎜~2,750㎜を確保 ※一部下がり天井が存在します。
収納床暖房
WIC:ウォークインクロゼット SIC:シューズインクロゼット
※掲載の情報は2025年12月時点のものであり、今後変更になる場合があります。
※住戸により仕様・形状が異なる場合がございます。
※LDKの畳数にはキッチンの畳数を含みます。
※間取り図の畳数(J)は約表示です。
※キッチン部分の畳数には、システムキッチン・冷蔵庫置場・カップボードが含まれています。詳しくは係員にお問い合わせください。
※代表タイプの間取りを表示しております。販売住戸の間取りにつきましては本広告時の物件概要「販売住戸の一覧」をご覧ください。













