静謐なる岡本邸宅としてのゆとりと開放感を確保しながら、パークライフやショッピングライフを謳歌するご家族のための、暮らしを愉しむためのアイデアに満ちている。そして、住まいで過ごす家族時間を充足させるための、現代の家族への配慮が施されている。新たなる岡本邸宅を物語るプランニングです。
※一部下がり天井がございます。
※No.1・3〜6・8・9に採用。
その静謐さの中で、ゆとりと落ち着きに満たされたインナーライフを過ごしながら、その時間は「出かけたくなる」ときめきに満ちている。アウトドアだけではなく、ショッピングに、リゾートにと人生を愉しむための邸宅がここに誕生します。
アウトドアを楽しむ暮らしを玄関先から息づかせることができる。各々に暮らしを充実させる家族の予定をみんなで共有することで団欒の時間をもっと楽しく演出できる。趣味もビジネスもスタディも充実させるためのプランニングアイデアが込められた邸宅空間をご用意しました。
アクティブに美しく、パークライフを謳歌するための収納プランニング
※全邸に採用。
多忙なご家族がポジティブにコミュニケーションを愉しむためのリビングアイデア
※全邸に採用。
自転車のメンテナンスなどにも便利な屋根付きの屋外スペース
※No.1・3・5・6・8・9に採用。
日常の身だしなみとワークスタイルを快適にフィッティングできる新発想空間
※No.1・5・6・7に採用。
アクティブに美しく、パークライフを謳歌するための収納プランニング
一般的なシューズボックスとしての機能だけではなく、土間部分にはスポーツ用品やアウトドア用品、汚れたシューズを収納できるスペースも設けたシューズインクロゼットを全邸に採用しました。
多忙なご家族がポジティブにコミュニケーションを愉しむためのリビングアイデア
カウンターはタブレットやPC置場、ホームハブとして活用。マグネットが活用できるボードには、家族の予定や大切なプリント、直近のご旅行のポートレート等をディスプレイ。家族の情報発信拠点として、コミュニケーション拠点として活用できる「ホームスタイルニッチ」を全邸のキッチン前壁に設置しました。
雨に濡れずに快適に利用できる、屋根付きの屋外スペース
建蔽率緩和による2階面積の充実を活かして、屋根付きの屋外スペースを設置。アクティブな家族のための駐輪場をはじめ、アウトドア用品やベビーカーを仮置きしたり、物置を設置したりと、ライフスタイルの幅が広がります。
※No.1・3・5・6・8・9に採用。
日常の身だしなみとワークスタイルを快適にフィッティングできる新発想空間
ワークデスクとして活用できるカウンターを備えたうえ、衣類収納をカスタマイズできるハンギングフック等を設けた「スタイリングフィットルーム」をレイアウト。打ち合わせ準備もしやすいリモートワークルームとして、自分だけの趣味やビジネスツールでコーディネートできる空間としてなど、多彩な用途でご利用いただけます。
※No.1・5・6・7に採用。
街区全体に「砧公園」の樹種を配し、四季の移ろいを表現した邸宅街区は、東西2方道路を活かして南面に豊かな間口を確保する配棟を実現。豊かな2階面積を活かしたルーフバルコニーなど開放感を追求した設計を実現しました。
東西2方道路と整型敷地を活かした、南面ワイドのリビング・ダイニング・キッチンのプランニング
団欒の場であるLDKに明るさや開放感を呼びこめるプランニング。キッチンも明るく衛生的で心地よく作業できる南面を中心にレイアウト。日常で開放感を体感できる邸宅空間を実現しました。
LDハイドア
リビング・ダイニングの建具は、約2.2m~約2.3mのハイドアを採用。空間の豊かさと上質さを高めると共に、リビング・ダイニングを迎賓空間として演出する設えです。
LD勾配高天井
空間に豊かな表情を生む勾配天井を採用したうえ、開放感あふれる最高天井高約3.4m(No.4)の高天井を採用したプランもご用意しました。
※No.2・4・5・7・8リビング・ダイニングに採用。
南面ワイドのLDK空間を上質に演出する間接照明
南面の豊かな間口を活かした開放的なリビング・ダイニングは、窓辺を間接照明にて演出。心地よい開放感に美しい表情を与えることで、団欒のひとときを上質に演出すると共に、開放的な窓辺をより印象的に演出します。
※No.1・3・6・9に採用。
公園近接立地の風を愉しむルーフバルコニー
第一種低層住居専用地域ならではの大きな空と、高台ならではの開放感を日常において心地よく体感できるルーフバルコニーを設置。日常の快適性を高めています。
※No.1・3・4・5・6・8・9に採用。
独創的な開放感を演出する横並びキッチン
開放感の高さや回遊性あふれる動線で独創的な団欒空間を生み出す横並びのダイニングキッチン・プランもご用意。そのご家族に合わせたライフスタイルを創造します。
※No.6に採用。
「フラワーランド」からわたる薫風が通り抜け、春にはハナミズキが迎える【イーストサイドアヴェニュー】。シンボリックな垂直ラインの意匠が美しく、さらなる穏やかさが感じられる【ウェストサイドアヴェニュー】。2つのアベニューの異なる景観、表情、意匠が季節の移ろいと共に美と豊かさを深めていく邸宅街区が誕生します。
※本敷地配置イラストは契約状況を表示したものではありません。
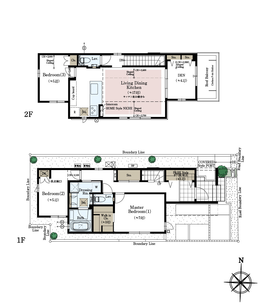
No. 1
1 街区
3 LDK
+スタイリングフィットルーム +パークスタイルストレージ+納戸
敷地面積 100 . 01 ㎡
(約 30 . 25 坪)
延床面積 104 . 91 ㎡
(約 31 . 73 坪)
ファインコート世田谷岡本レジデンシャルサロン
- 営業時間
- 土日祝日:10:00~17:00
- 平日:11:00~17:00
- 定休日
- 火・水・木曜日
Copyright © Mitsui Fudosan Residential Co.,Ltd. All Rights Reserved.
No. 2
2 街区
4 LDK
(DEN含む) +パークスタイルストレージ+WIC +ファミリークロゼット
敷地面積 122 . 34 ㎡
(約 37 . 00 坪)
延床面積 101 . 02 ㎡
(約 30 . 55 坪)
ファインコート世田谷岡本レジデンシャルサロン
- 営業時間
- 土日祝日:10:00~17:00
- 平日:11:00~17:00
- 定休日
- 火・水・木曜日
Copyright © Mitsui Fudosan Residential Co.,Ltd. All Rights Reserved.
No. 3
3 街区
4 LDK
(DEN含む) +パークスタイルストレージ
敷地面積 100 . 01 ㎡
(約 30 . 25 坪)
延床面積 105 . 57 ㎡
(約 31 . 93 坪)
ファインコート世田谷岡本レジデンシャルサロン
- 営業時間
- 土日祝日:10:00~17:00
- 平日:11:00~17:00
- 定休日
- 火・水・木曜日
Copyright © Mitsui Fudosan Residential Co.,Ltd. All Rights Reserved.
No. 4
4 街区
4 LDK
(DEN含む) +パークスタイルストレージ+WIC
敷地面積 120 . 16 ㎡
(約 36 . 34 坪)
延床面積 99 . 57 ㎡
(約 30 . 11 坪)
ファインコート世田谷岡本レジデンシャルサロン
- 営業時間
- 土日祝日:10:00~17:00
- 平日:11:00~17:00
- 定休日
- 火・水・木曜日
Copyright © Mitsui Fudosan Residential Co.,Ltd. All Rights Reserved.
No. 5
5 街区
3 LDK
+スタイリングフィットルーム +パークスタイルストレージ +WIC+WIP
敷地面積 100 . 02 ㎡
(約 30 . 25 坪)
延床面積 106 . 71 ㎡
(約 32 . 27 坪)
ファインコート世田谷岡本レジデンシャルサロン
- 営業時間
- 土日祝日:10:00~17:00
- 平日:11:00~17:00
- 定休日
- 火・水・木曜日
Copyright © Mitsui Fudosan Residential Co.,Ltd. All Rights Reserved.
No. 6
6 街区
3 LDK
+スタイリングフィットルーム +パークスタイルストレージ+WIC
敷地面積 105 . 17 ㎡
(約 31 . 81 坪)
延床面積 109 . 40 ㎡
(約 33 . 09 坪)
ファインコート世田谷岡本レジデンシャルサロン
- 営業時間
- 土日祝日:10:00~17:00
- 平日:11:00~17:00
- 定休日
- 火・水・木曜日
Copyright © Mitsui Fudosan Residential Co.,Ltd. All Rights Reserved.
No. 7
7 街区
3 LDK
+スタイリングフィットルーム +パークスタイルストレージ +WIC+WIP
敷地面積 109 . 02 ㎡
(約 32 . 97 坪)
延床面積 96 . 04 ㎡
(約 29 . 05 坪)
ファインコート世田谷岡本レジデンシャルサロン
- 営業時間
- 土日祝日:10:00~17:00
- 平日:11:00~17:00
- 定休日
- 火・水・木曜日
Copyright © Mitsui Fudosan Residential Co.,Ltd. All Rights Reserved.
No. 8
8 街区
4 LDK
(DEN含む) +パークスタイルストレージ +WIC
敷地面積 100 . 03 ㎡
(約 30 . 25 坪)
延床面積 104 . 66 ㎡
(約 31 . 65 坪)
ファインコート世田谷岡本レジデンシャルサロン
- 営業時間
- 土日祝日:10:00~17:00
- 平日:11:00~17:00
- 定休日
- 火・水・木曜日
Copyright © Mitsui Fudosan Residential Co.,Ltd. All Rights Reserved.
No. 9
9 街区
4 LDK
(DEN含む) +パークスタイルストレージ+WIC
敷地面積 100 . 01 ㎡
(約 30 . 25 坪)
延床面積 106 . 38 ㎡
(約 32 . 17 坪)
ファインコート世田谷岡本レジデンシャルサロン
- 営業時間
- 土日祝日:10:00~17:00
- 平日:11:00~17:00
- 定休日
- 火・水・木曜日
Copyright © Mitsui Fudosan Residential Co.,Ltd. All Rights Reserved.
※掲載の敷地配置イラストは、計画段階の設計図と現地周辺航空写真を基に描き起こしたもので、実際とは異なります。※販売住戸の間取りにつきましては、本広告時の物件概要内「販売住戸の一覧」をご覧ください。※掲載の間取りは計画段階の図面を基に描き起こしたもので実際とは多少異なります。※施工等の関係で変更になる場合がございます。詳しくは施工図等でご確認ください。※外構の石、タイル等はおおよその施工範囲を示したものです。 ※フリーウォールの撤去による間取り変更には、設計費・工事費が必要となります。 ※WIC=ウォークインクロゼット ※WIP=ウォークインパントリー ※No.2/敷地面積に路地状部分約39.37㎡を含んでいます。 ※No.4/敷地面積に路地状部分約37.62㎡を含んでいます。※No.7/敷地面積に路地状部分約37.05㎡を含んでいます。
