「ファインコート稲毛海岸美浜の杜(分譲済)」の住み心地調査を踏まえ
ラストピースとしてふさわしいプランニング
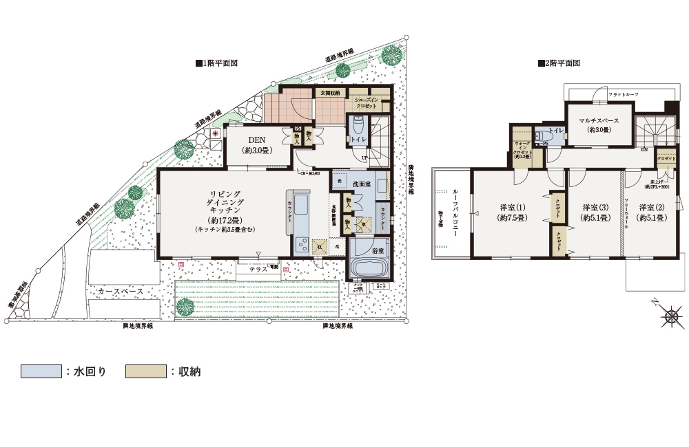
No. 91
91 街区
4 LDK
(DEN含む) +MS+WIC+WTP+SIC /合計収納畳数:約12.3畳
敷地面積 115 . 05 ㎡
(約 34 . 80 坪)
延床面積 108 . 44 ㎡
(約 32 . 80 坪)
- 1階床面積:57.96㎡(約17.53坪)
- 2階床面積:50.48㎡(約15.27坪)
- KITCHEN充実プラン
- インテリアカラーテイスト:パールホワイト
ファインコート稲毛海岸美浜の彩レジデンシャルサロン
- 営業時間
- 10:00~17:00
- 定休日
- 火曜・水曜・木曜
Copyright © Mitsui Fudosan Residential Co.,Ltd. All Rights Reserved.
No. 92
92 街区
4 LDK
(DEN含む) +IKUMA+MS /合計収納畳数:約8.7畳
敷地面積 115 . 05 ㎡
(約 34 . 80 坪)
延床面積 104 . 43 ㎡
(約 31 . 59 坪)
- 1階床面積:53.82㎡(約16.28坪)
- 2階床面積:50.61㎡(約15.30坪)
- IKUMAプラン
- インテリアカラーテイスト:ショコラブラック
※設計図面を基に描いていますが、施工上の理由などにより実際と異なる場合がありますので、予めご了承ください。 ※図面と現況が異なる場合は現況優先となります。
ファインコート稲毛海岸美浜の彩レジデンシャルサロン
- 営業時間
- 10:00~17:00
- 定休日
- 火曜・水曜・木曜
Copyright © Mitsui Fudosan Residential Co.,Ltd. All Rights Reserved.
No. 93
93 街区
4 LDK
(DEN含む) +土間+S+WIC /合計収納畳数:約9.6畳
敷地面積 115 . 05 ㎡
(約 34 . 80 坪)
延床面積 103 . 51 ㎡
(約 31 . 31 坪)
- 1階床面積:54.24㎡(約16.40坪)
- 2階床面積:49.27㎡(約14.90坪)
- DOMAプラン
- インテリアカラーテイスト:ソフトグレージュ
※フリーウォールの撤去には別途設計費・工事費が必要となります。
※設計図面を基に描いていますが、施工上の理由などにより実際と異なる場合がありますので、予めご了承ください。 ※図面と現況が異なる場合は現況優先となります。
ファインコート稲毛海岸美浜の彩レジデンシャルサロン
- 営業時間
- 10:00~17:00
- 定休日
- 火曜・水曜・木曜
Copyright © Mitsui Fudosan Residential Co.,Ltd. All Rights Reserved.
No. 94
94 街区
4 LDK
(DEN含む) +MS+WIC+SIC /合計収納畳数:約10.95畳
敷地面積 120 . 87 ㎡
(約 36 . 56 坪)
延床面積 101 . 13 ㎡
(約 30 . 59 坪)
- 1階床面積:53.93㎡(約16.31坪)
- 2階床面積:47.20㎡(約14.27坪)
- 洗面UTILITYプラン
- インテリアカラーテイスト:ショコラブラック
※フリーウォールの撤去には別途設計費・工事費が必要となります。
※設計図面を基に描いていますが、施工上の理由などにより実際と異なる場合がありますので、予めご了承ください。 ※図面と現況が異なる場合は現況優先となります。
ファインコート稲毛海岸美浜の彩レジデンシャルサロン
- 営業時間
- 10:00~17:00
- 定休日
- 火曜・水曜・木曜
Copyright © Mitsui Fudosan Residential Co.,Ltd. All Rights Reserved.
No. 95
95 街区
4 LDK
(DEN含む) +土間+S+WIC /合計収納畳数:約10.4畳
敷地面積 120 . 59 ㎡
(約 36 . 47 坪)
延床面積 104 . 34 ㎡
(約 31 . 56 坪)
- 1階床面積:52.17㎡(約15.78坪)
- 2階床面積:52.17㎡(約15.78坪)
- DOMAプラン
- インテリアカラーテイスト:ソフトグレージュ
※フリーウォールの撤去には別途設計費・工事費が必要となります。
※設計図面を基に描いていますが、施工上の理由などにより実際と異なる場合がありますので、予めご了承ください。 ※図面と現況が異なる場合は現況優先となります。
ファインコート稲毛海岸美浜の彩レジデンシャルサロン
- 営業時間
- 10:00~17:00
- 定休日
- 火曜・水曜・木曜
Copyright © Mitsui Fudosan Residential Co.,Ltd. All Rights Reserved.
No. 96
96 街区
4 LDK
(DEN含む) +MS+WIC+SIC /合計収納畳数:約10.8畳
敷地面積 115 . 05 ㎡
(約 34 . 80 坪)
延床面積 108 . 37 ㎡
(約 32 . 78 坪)
- 1階床面積:53.10㎡(約16.06坪)
- 2階床面積:55.27㎡(約16.71坪)
- 洗面UTILITYプラン
- インテリアカラーテイスト:ソフトグレージュ
※設計図面を基に描いていますが、施工上の理由などにより実際と異なる場合がありますので、予めご了承ください。 ※図面と現況が異なる場合は現況優先となります。
ファインコート稲毛海岸美浜の彩レジデンシャルサロン
- 営業時間
- 10:00~17:00
- 定休日
- 火曜・水曜・木曜
Copyright © Mitsui Fudosan Residential Co.,Ltd. All Rights Reserved.
No. 97
97 街区
4 LDK
(DEN含む) +MS+WIC+SIC /合計収納畳数:約10.8畳
敷地面積 115 . 05 ㎡
(約 34 . 80 坪)
延床面積 108 . 37 ㎡
(約 32 . 78 坪)
- 1階床面積:53.10㎡(約16.06坪)
- 2階床面積:55.27㎡(約16.71坪)
- 洗面UTILITYプラン
- インテリアカラーテイスト:ショコラブラック
※設計図面を基に描いていますが、施工上の理由などにより実際と異なる場合がありますので、予めご了承ください。 ※図面と現況が異なる場合は現況優先となります。
ファインコート稲毛海岸美浜の彩レジデンシャルサロン
- 営業時間
- 10:00~17:00
- 定休日
- 火曜・水曜・木曜
Copyright © Mitsui Fudosan Residential Co.,Ltd. All Rights Reserved.
No. 98
98 街区
4 LDK
(DEN含む) +土間+MS+WIC /合計収納畳数:約12.6畳
敷地面積 115 . 04 ㎡
(約 34 . 79 坪)
延床面積 113 . 64 ㎡
(約 34 . 37 坪)
- 1階床面積:62.10㎡(約18.78坪)
- 2階床面積:51.54㎡(約15.59坪)
- DOMAプラン
- インテリアカラーテイスト:ソフトグレージュ
※設計図面を基に描いていますが、施工上の理由などにより実際と異なる場合がありますので、予めご了承ください。 ※図面と現況が異なる場合は現況優先となります。
ファインコート稲毛海岸美浜の彩レジデンシャルサロン
- 営業時間
- 10:00~17:00
- 定休日
- 火曜・水曜・木曜
Copyright © Mitsui Fudosan Residential Co.,Ltd. All Rights Reserved.
No. 99
99 街区
4 LDK
(DEN含む) +MS+WIC+WTP+SIC /合計収納畳数:約12.3畳
敷地面積 115 . 05 ㎡
(約 34 . 80 坪)
延床面積 118 . 09 ㎡
(約 35 . 72 坪)
- 1階床面積:62.55㎡(約18.92坪)
- 2階床面積:55.54㎡(約16.80坪)
- KITCHEN充実プラン
- インテリアカラーテイスト:ショコラブラック
※フリーウォールの撤去には別途設計費・工事費が必要となります。
※設計図面を基に描いていますが、施工上の理由などにより実際と異なる場合がありますので、予めご了承ください。 ※図面と現況が異なる場合は現況優先となります。
ファインコート稲毛海岸美浜の彩レジデンシャルサロン
- 営業時間
- 10:00~17:00
- 定休日
- 火曜・水曜・木曜
Copyright © Mitsui Fudosan Residential Co.,Ltd. All Rights Reserved.
No. 100
100 街区
4 LDK
(DEN含む) +S+WIC+SIC /合計収納畳数:約12.1畳
敷地面積 115 . 06 ㎡
(約 34 . 80 坪)
延床面積 99 . 67 ㎡
(約 30 . 15 坪)
- 1階床面積:54.13㎡(約16.37坪)
- 2階床面積:45.54㎡(約13.77坪)
- 洗面UTILITYプラン
- インテリアカラーテイスト:ソフトグレージュ
※フリーウォールの撤去には別途設計費・工事費が必要となります。
※設計図面を基に描いていますが、施工上の理由などにより実際と異なる場合がありますので、予めご了承ください。 ※図面と現況が異なる場合は現況優先となります。
ファインコート稲毛海岸美浜の彩レジデンシャルサロン
- 営業時間
- 10:00~17:00
- 定休日
- 火曜・水曜・木曜
Copyright © Mitsui Fudosan Residential Co.,Ltd. All Rights Reserved.
No. 101
101 街区
4 LDK
(DEN含む) +S+WIC+SIC /合計収納畳数:約12.1畳
敷地面積 115 . 05 ㎡
(約 34 . 80 坪)
延床面積 99 . 67 ㎡
(約 30 . 15 坪)
- 1階床面積:54.13㎡(約16.37坪)
- 2階床面積:45.54㎡(約13.77坪)
- 洗面UTILITYプラン
- インテリアカラーテイスト:ショコラブラック
※フリーウォールの撤去には別途設計費・工事費が必要となります。
※設計図面を基に描いていますが、施工上の理由などにより実際と異なる場合がありますので、予めご了承ください。 ※図面と現況が異なる場合は現況優先となります。
ファインコート稲毛海岸美浜の彩レジデンシャルサロン
- 営業時間
- 10:00~17:00
- 定休日
- 火曜・水曜・木曜
Copyright © Mitsui Fudosan Residential Co.,Ltd. All Rights Reserved.
No. 102
102 街区
4 LDK
(DEN含む)+S /合計収納畳数:約10.25畳
敷地面積 115 . 05 ㎡
(約 34 . 80 坪)
延床面積 96 . 56 ㎡
(約 29 . 20 坪)
- 1階床面積:52.99㎡(約16.02坪)
- 2階床面積:43.57㎡(約13.17坪)
- 洗面UTILITYプラン
- インテリアカラーテイスト:パールホワイト
※設計図面を基に描いていますが、施工上の理由などにより実際と異なる場合がありますので、予めご了承ください。 ※図面と現況が異なる場合は現況優先となります。
ファインコート稲毛海岸美浜の彩レジデンシャルサロン
- 営業時間
- 10:00~17:00
- 定休日
- 火曜・水曜・木曜
Copyright © Mitsui Fudosan Residential Co.,Ltd. All Rights Reserved.
No. 103
103 街区
4 LDK
(DEN含む) +IKUMA+S+WIC+SIC /合計収納畳数:約8.7畳
敷地面積 115 . 04 ㎡
(約 34 . 79 坪)
延床面積 109 . 27 ㎡
(約 33 . 05 坪)
- 1階床面積:57.13㎡(約17.28坪)
- 2階床面積:52.14㎡(約15.77坪)
- IKUMAプラン
- インテリアカラーテイスト:ソフトグレージュ
※設計図面を基に描いていますが、施工上の理由などにより実際と異なる場合がありますので、予めご了承ください。 ※図面と現況が異なる場合は現況優先となります。
ファインコート稲毛海岸美浜の彩レジデンシャルサロン
- 営業時間
- 10:00~17:00
- 定休日
- 火曜・水曜・木曜
Copyright © Mitsui Fudosan Residential Co.,Ltd. All Rights Reserved.
No. 104
104 街区
4 LDK
(DEN含む) +MS+WIC+WTP /合計収納畳数:約12.1畳
敷地面積 115 . 05 ㎡
(約 34 . 80 坪)
延床面積 109 . 39 ㎡
(約 33 . 09 坪)
- 1階床面積:59.86㎡(約18.10坪)
- 2階床面積:49.53㎡(約14.98坪)
- KITCHEN充実プラン
- インテリアカラーテイスト:ショコラブラック
※フリーウォールの撤去には別途設計費・工事費が必要となります。
※設計図面を基に描いていますが、施工上の理由などにより実際と異なる場合がありますので、予めご了承ください。 ※図面と現況が異なる場合は現況優先となります。
ファインコート稲毛海岸美浜の彩レジデンシャルサロン
- 営業時間
- 10:00~17:00
- 定休日
- 火曜・水曜・木曜
Copyright © Mitsui Fudosan Residential Co.,Ltd. All Rights Reserved.
※DEN=書斎、MS=マルチスペース、S=納戸、WIC=ウォークインクロゼット、WTP=ウォークスルーパントリー、SIC=シューズインクロゼット
※本物件の代表タイプ間取りを表示しています。販売住戸の間取りにつきましては、本広告時の物件概要内「販売住戸の一覧」をご覧ください。
※掲載の間取りは計画段階の図園を基に描き起こしたもので実際とは多少異なります。
※施工時の関係で変更になる場合がございます。詳しくは施工図等でご確認ください。
※外構の石、タイル等はおおよその施工範囲を示したものです。家具・調度品等は販売価格に含まれません。

※設計図面を基に描いていますが、施工上の理由などにより実際と異なる場合がありますので、予めご了承ください。 ※図面と現況が異なる場合は現況優先となります。