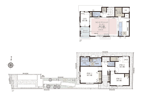
販売中の間取り一覧 三井の戸建 ファインコート東小金井プラナシティ 所在地 東京都小金井市東町2丁目24-11(地番) 地図 交通 中央本線「東小金井」駅 徒歩15分~17分中央本線「武蔵境」駅 徒歩19分~22分西武鉄道多摩川線「新小金井」駅 徒歩9分~11分中央本線「三鷹」駅 バス9分 バス停から徒歩1分~3分 現地よりバス停まで徒歩1~3分、「三鷹」駅までバス19分 間取り 4LDK 販売中間取りを表示 販売時期 販売中 価格 7040万円(1戸) 物件エントリー 来場予約 詳細を見る 1件が該当しました。 現在販売中の間取図を表示しております。 90㎡台 土地面積 102.54㎡ 建物面積 93.47㎡ 価格 7040万円(1戸) 間取り 4LDK 区画番号 20